 |  |
 |  |
 | 
Brandschutzplanung
- Erstellung von Brandschutzkonzepten für Gebäude aller Gebäudeklassen und Sonderbauten
- Mitwirkung bei Abstimmungen mit den genehmigenden Behörden und der Feuerwehr
- Begutachtung und Bewertung des Bestandes.
- Feststellung der wesentlichen Anforderungen an den Brandschutz aufgrund der Art und Nutzung der Nutzungseinheit / des Gebäudes und der einschlägigen Rechtsgrundlagen.
- Klärung der Möglichkeiten beim abwehrenden Brandschutz.
- Klärung der Anforderungen wie: Abstandsflächen, Feuerwehr Zufahrt / Zugang, Löschwasserbedarf (Grundschutz), Rettungswegekonzept, Abschnittsbildung, Tragglieder / Bauteile / Baustoffe
- Dokumentation der Planungsergebnisse und Abstimmung mit den Planungsbeteiligten, -Variantenuntersuchung
- Mitwirken bei Abstimmungen mit Behörden / Brandschutzdienststellen / Feuerwehr
- Erstellung des abschließenden Brandschutzkonzeptes mit Beschreibung der baulichen, anlagentechnischen und betrieblichen Maßnahmen, - Berichtsform mit Übersichtszeichnungen
- Flucht- und Rettungswegepläne
- Entrauchungsberechnungen
info@ibdamm.de oder 030 61203599
Beispiele
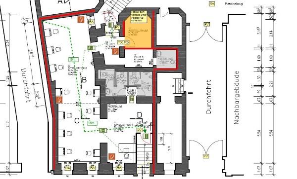
Spielhalle, Gneisenaustraße, Berlin 
Sonderbau, Brandschutzkonzept für Umnutzung
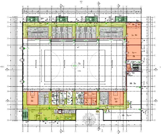
Mehrfeldsporthalle Falkensee 
Sonderbau, Brandschutzkonzept (Entwurf), Entrauchungsberechnung
Pettenkofer Grundschule, Berlin
Sonderbau, Bestandsaufnahme, Brandschutzkonzept
|
 |
|  |
 |  |  ingenieurbüro reinhard damm | info@ibdamm.de  |  |